電話:1366-518-1319
地址:無錫市銀輝摩天360大廈3806室
- 
                                    

 - 
                                    
邁健生物無錫辦公樓裝修工程開工啦
江蘇邁健生物科技位于無錫生命科技產業園,項目面積大約在500平方米,該項目由無錫輝燁裝飾公司負責,已于12月25日圣誕節正式開工啦。我們對該次無錫辦公樓裝修工程表達著萬分的期待,期待見到一個煥然一新的辦公樓。 邁健生物無錫辦公樓裝修項目合同 ···
查看詳情>> - 
                                    

 - 
                                    
愛普科斯餐廳裝修工程已正式開工
12月,我們公司接到為愛普科斯設計餐廳的訂單,經過設計師夜以繼日多天的設計修改,方案得到了客戶代表們的一致認可。隨后,愛普科斯科技有限公司決定將之后的餐廳裝修施工工作也交由我們進行,在這里要感謝客戶的信任與支持。 (鋼結構焊接施工中) 愛普科斯是一家總···
查看詳情>> - 
                                    

 - 
                                    
無錫辦公室設計之邁健研討會現場
無錫輝燁辦公室裝飾公司與江蘇邁健生物科技發展股份有限公司已于2016年12月16日上午9時至下午5時,就邁健公司的展廳設計方案展開了一場如火如荼的研討會。 在這場研討會中,雙方人員就著現有的CAD平面設計圖提出了需要修改的內容,并由輝燁裝飾公司的設計師現···
查看詳情>> - 
                                    

 - 
                                    
無錫眾邦辦公樓裝修工程進入倒計時!
于2016年8月19日開工的眾邦無錫辦公樓裝修工程正式進入倒計時階段!該辦公大樓套內面積近1065平,在經過了輝燁眾多員工的共同努力下,已經基本完成。 工程部的同事向小編發來了施工現場的圖片,我們可以看到:眾邦無錫辦公室裝修工程目前燈模的···
查看詳情>> - 
                                    

 - 
                                    
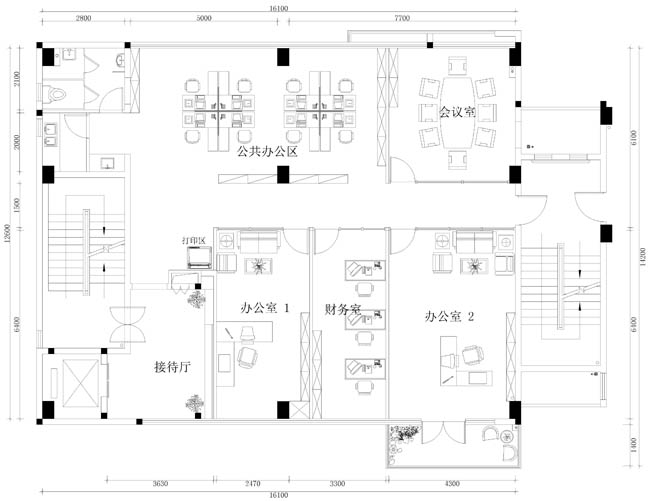
無錫辦公室裝修實例之邁健生物科技設計方案
對于無錫辦公室裝修,我們把設計方案與施工細節講得再細那也是紙上談兵。話說得再好聽,沒有后續的行為作后繼也是白忙一場。所以今天我們就用實際案例來給大家講下設計師在早無錫辦公室設計方案時的每一個細節。 我們今天要講的實例是一個剛開展的工程項目—&···
查看詳情>> - 
                                    

 - 
                                    
格萊德無錫辦公樓裝修工程進度反饋
無錫格萊德科技有限公司位于前洲工業園區,輝燁為其做了無錫辦公樓裝修,目前工程已經過半。接下來讓我們一起看看現場工程部小伙伴們發回來的*新反饋吧! 格萊德無錫辦公室裝修項目合同 格萊德無錫辦公樓裝修工程*新進度:目前一樓地平已結束,感應門也在定制中,···
查看詳情>> - 
                                    

 - 
                                    
洋蔥頭龍蝦館室內裝修工程今日開工
洋蔥頭龍蝦館室內裝修是一家老牌龍蝦專營餐飲店,定位于休閑飲食,為提高品牌形象,現開始整體重做室內裝修。 洋蔥頭龍蝦館室內裝修平面設計圖紙 目前舊體已開始拆除,不再沿用以往的室內裝修風格,共六個包間,有三個包間風格進行調整,重新設計;大廳的整體風格已經···
查看詳情>> - 
                                    

 - 
                                    
索立德園區辦公室裝修正式開工啦
位于索立德園區的蘇中環保有限公司辦公室裝修已正式開工啦,在這里輝燁裝飾先祝該項目開工大吉,一路順順利利地按期竣工。 蘇中環保公司是一家主營新型環保材料的發展型公司,其所擁有的建筑面積不是很大,所以輝燁裝飾的設計師特意為蘇中環保選擇了開放式的辦公室裝修風格···
查看詳情>> - 
                                    

 - 
                                    
吉諾廠房裝修二階段工程正式啟動
吉諾廠房裝修工程一階段的兩個會議室改造工程已基本完工,目前正式進入二階段工程。 二階段吉諾廠房工程以大廳為主,營造一處用以接待的會所,整體設計流暢大方。現場已拆除辦公室的原有吊頂、地坪,并且將施工現場清理干凈。截止10月18日,水電材料已完成進場···
查看詳情>> 

